Ferienhaus HAL820 in Hylte / Halland
Ferienhaus HAL820 in Hylte / Halland
pro Woche ab
890 €
5 Personen
keine Haustiere
2 Schlafzimmer
80 m zum Wasser
Standort Ferienhaus HAL820 in Hylte / Halland, Karte

Ferienhaus HAL820 in Södra vägen 29 a, Unnaryd

Lage des Hauses Bäcksdal
Inmitten der reizvollen Landschaft Smålands, im kleinen Ort Unnaryd, liegt das gemütliche Ferienhaus Bäcksdal. Das großzügige Grundstück mit etwa 2.200 m² Fläche öffnet sich zum See hin und bietet dir viel Platz zum Entspannen und Genießen. Nur etwa 80 m vom Haus entfernt erreichst du den See Unnen, wo ein Bootssteg und eine kleine Badestelle auf dich warten. Zwischen Haus und See liegt ein weiteres Ferienhaus, Haus Mio (HAL819). Für ein erfrischendes Bad kannst du außerdem den öffentlichen Badeplatz nutzen, der etwa 400 m entfernt liegt. Im Ort selbst findest du nach einem kurzen Spaziergang – etwa 800 m – Einkaufsmöglichkeiten, Restaurants und Cafés. Auch für Ausflüge bietet die Umgebung viele schöne Ziele: Der große Bolmen-See liegt etwa 10 km entfernt, der Elchpark Hamneda etwa 58 km. Die bekannte Einkaufsstätte Gekås in Ullared erreichst du in etwa einer Stunde mit dem Auto, ebenso wie die Westernstadt High Chaparral bei Kulltorp und den beeindruckenden Store Mosse Nationalpark.

Ausstattung
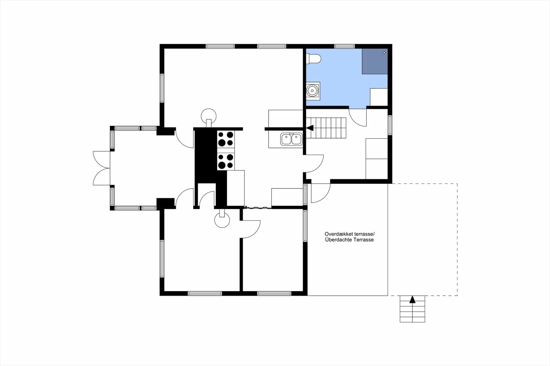
Das Ferienhaus bietet auf zwei Etagen rund 75 m² Wohnfläche und Platz für bis zu fünf Personen. Zwei Eingänge führen ins Haus, der meist genutzte über die gemütliche, teils überdachte Terrasse – ein schöner Ort für gemeinsame Mahlzeiten oder einen ruhigen Start in den Tag. Im Erdgeschoss befinden sich eine Küche, ein Wohnzimmer mit Kachelofen, ein kleines Esszimmer, ein weiterer Wohnraum mit TV (deutsche Programme) sowie ein heller Wintergarten, der besonders an kühleren Tagen zum Lesen oder Entspannen einlädt. Die Küche verfügt über einen Herd (4 Platten), Ofen, Mikrowelle und Kaffeemaschine. Kühlschrank und Gefrierschrank stehen im Flur nebenan. Das Badezimmer ist mit Dusche, WC und Waschmaschine ausgestattet. Im Obergeschoss liegen die beiden Schlafzimmer: eines mit einem Doppelbett und einem Einzelbett, das andere mit zwei Einzelbetten. Zur Außenanlage gehören eine teils überdachte Terrasse mit Gartenmöbeln und Grill sowie ein Parkplatz am Haus. Am Steg, etwa 80 m entfernt, liegt dein Ruderboot, das im Mietpreis bereits enthalten ist. Beheizt wird das Haus per Elektroheizung.

Besonderheiten
Die An- und Abreise erfolgt jeweils am Samstag. Haustiere sind nicht erlaubt, Rauchen ist ebenfalls verboten. Eine Kaution wird mit der Mietzahlung fällig. Optional kannst du Bettwäsche und Handtücher für 15 EUR pro Set mieten. Wer das Ruderboot mit einem Motor nutzen möchte, kann einen 5-PS-Benzinmotor für 120 EUR pro Woche dazubuchen (Benzin nicht inklusive). Ein zweites Boot kann auf Anfrage für 100 EUR gemietet werden. Für gemütliche Abende am Kachelofen steht auf Wunsch Brennholz für 50 EUR pro Woche bereit.

Hausbilder

Bild 1 von 21 Bild 2 von 21 Bild 3 von 21 Bild 4 von 21 Bild 5 von 21 Bild 6 von 21 Bild 7 von 21 Bild 8 von 21 Bild 9 von 21 Bild 10 von 21 Bild 11 von 21 Bild 12 von 21 Bild 13 von 21 Bild 14 von 21 Bild 15 von 21 Bild 16 von 21 Bild 17 von 21 Bild 18 von 21 Bild 19 von 21 Bild 20 von 21 Bild 21 von 21

Ausstattung

Allgemeines

  • Anzahl Personen: 5
  • Baujahr: 1890
  • Boot Ruderboot
  • Grundstücksfläche: 2.400 m²
  • Inkl. Endreinigung
  • Nichtraucher
  • Verbrauch inklusive
  • Wohnfläche: 75 m²

Entfernungen

  • Abstand Einkauf: 800 m
  • Abstand Restaurant: 300 m
  • Abstand Strand: 80 m

Wohnbereich

  • Kaminofen

Schlafbereich

  • Anzahl Doppelbetten: 1
  • Anzahl Einzelbetten: 3

Küche

  • Extra Backofen
  • Herd
  • Kaffeemaschine
  • Kühlschrank l
  • Mikrowelle
  • Separate Küche
  • Tiefkühler: 0 l
  • Wasserkocher

Bad

  • Anzahl Duschen: 1
  • Anzahl Toiletten: 1
  • Waschmaschine

Multimedia

  • Deutsches Fernsehen

Aussenbereich

  • Gartenmöbel
  • Grill
  • Spielhaus
  • Terrasse: 1 m² Teilw. überdachte Terrasse

Sonstiges

  • Anglerfreundlich
  • Anzahl Etagen: 2
  • Bei diesem Haus inkl. Wasser
  • Bei diesem Haus inkl. Strom
  • Besonderheiten Bettwäsche und Handtücher optional 15€/Person. 5PS-Benzinmotor optional 120€/Woche. 2. Boot optional 100€/Woche. Brennholz optional 50€/Woche.
  • Besonderheiten Gute Angelmöglichkeiten
  • Bügelbrett
  • Bügeleisen
  • Das Aufladen von Elektroautos ist nicht erlaubt

Neben- und Verbrauchskosten

Die aktuellen Verbrauchskosten finden Sie im nächsten Schritt im Buchungsformular.

Raumaufteilung

Grundriss
Grundriss

Lageplan

Adresse
Ferienhaus HAL820
Södra vägen 29 a

310 83 Unnaryd

Die Inhalte sind aufgrund Ihrer Cookie-Einstellungen nicht verfügbar. Um diese Inhalte zu nutzen, stimmen Sie bitte der Verwendung von "Präferenz"-Cookies zu.

Präferenz-Cookies erlauben Einstellungen

Belegungskalender

  1. Reisedauer auswählen
  2. Anzahl Reisende auswählen
  3. Anreisetag im Belegungskalender anklicken
  4. Sie bekommen Verfügbarkeit und Preis angezeigt
Bitte beachten Sie, dass sich bei Änderungen des Reisezeitraumes auch Änderungen bei der Hausbeschreibung und/oder der Ausstattung ergeben können.
frei
belegt
gewählter Zeitraum
2026 1 2 3 4 5 6 7 8 9 10 11 12 13 14 15 16 17 18 19 20 21 22 23 24 25 26 27 28 29 30 31
Mai
F
S
S
M
D
M
D
F
S
S
M
D
M
D
F
S
S
M
D
M
D
F
S
S
M
D
M
D
F
S
S
Juni
M
D
M
D
F
S
S
M
D
M
D
F
S
S
M
D
M
D
F
S
S
M
D
M
D
F
S
S
M
D
 
Juli
M
D
F
S
S
M
D
M
D
F
S
S
M
D
M
D
F
S
S
M
D
M
D
F
S
S
M
D
M
D
F
August
S
S
M
D
M
D
F
S
S
M
D
M
D
F
S
S
M
D
M
D
F
S
S
M
D
M
D
F
S
S
M
September
D
M
D
F
S
S
M
D
M
D
F
S
S
M
D
M
D
F
S
S
M
D
M
D
F
S
S
M
D
M
 
Oktober
D
F
S
S
M
D
M
D
F
S
S
M
D
M
D
F
S
S
M
D
M
D
F
S
S
M
D
M
D
F
S
November
S
M
D
M
D
F
S
S
M
D
M
D
F
S
S
M
D
M
D
F
S
S
M
D
M
D
F
S
S
M
 
Dezember
D
M
D
F
S
S
M
D
M
D
F
S
S
M
D
M
D
F
S
S
M
D
M
D
F
S
S
M
D
M
D
2027 1 2 3 4 5 6 7 8 9 10 11 12 13 14 15 16 17 18 19 20 21 22 23 24 25 26 27 28 29 30 31
Januar
F
S
frei
belegt
gewählter Zeitraum

Ferienhäuser in der Umgebung

Die Inhalte sind aufgrund Ihrer Cookie-Einstellungen nicht verfügbar. Um diese Inhalte zu nutzen, stimmen Sie bitte der Verwendung von "Präferenz"-Cookies zu.

Präferenz-Cookies erlauben Einstellungen